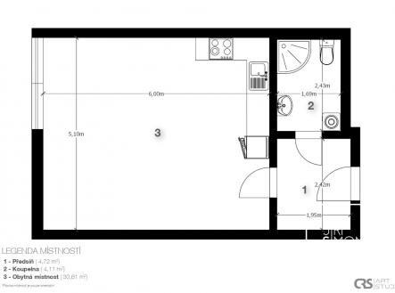
Nabízíme vám v dlouhodobému pronájmu byt s dispozicí 1+kk a výměrou 40 m2 v obci Nová Ves (Praha-východ). Byt se nachází v prvním patře a je úplně nový. V bytě ještě nikdo nebydlel a budete jeho první nájemníci. Tento byt obsahuje velký obývací pokoj s kuchyňským koutem, koupelnu s wc. Jedná se o moderní byt. K bytu patří jedno parkovací místo před domem. Nájemné je 12.000,- Kč / měsíčně + zálohy na 3.620,- zálohy na energie a služby (z toho je 1000,-/měs. voda, 1500,- topení, 20,-/měs. elektřina v domě, 100,-/měs. na osobu za odvoz odpadků, 1000,- /měs. elektřina v bytě). V bytě je topení vyřešeno radiátory s centrálním vytápěním a ohřev teplé vody elektrickým bojlerem. V bytě kompletně vybavená kuchyňská linka a koupelna, tak jak je vyobrazeno na fotografiích. Jinak je byt prázdný. Při nastěhování se platí 15.620,- nájemné na první měsíc + 15.620,- kauce + 15.620,- provize.
- Dispozice bytu:1+kk
- Podlaží v domě:2
- Počet podlaží v domě:2
- Celková podlahová plocha:40 m2
- Druh objektu:cihlová
- Stav objektu:novostavba
- Vlastnictví:osobní
- Umístění objektu:klidná část obce
- Doprava:silnice; MHD; autobus
- Voda:Vodovod
- Odpad:Kanalizace
- Energetická náročnost budovy:G - Mimořádně nehospodárná
- Energetický ukazatel
podle vyhlášky:č. 264/2020 Sb.
