Na prodej rodinný dům v Mratíně v rezidenční čtvrti v ulici U Cukrovaru 140 se současnou dispozicí 2+1 a velkou půdou, kterou je možné předělat na další tři pokoje. Současná obytná plocha domu je 62 m2 + stejná výměra je v podroví. K domu náleží pozemek s výměrou 333 m2.
Jedná se o prodej těchto nemovitých věci: Rodinný dům č.p. 140 a pozemek parc. č. st. 89/2, st. 582 a 150/8 v obci Mratín, okres Praha-východ, katastrální území Mratín.
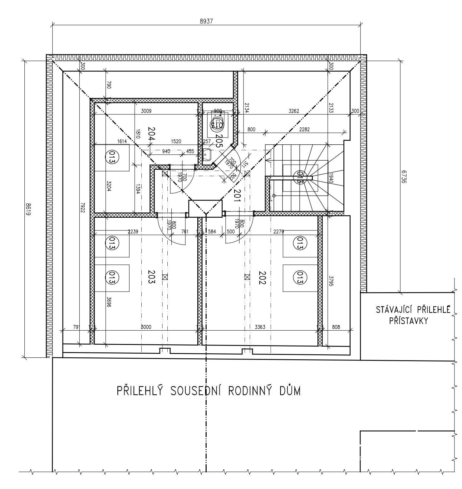
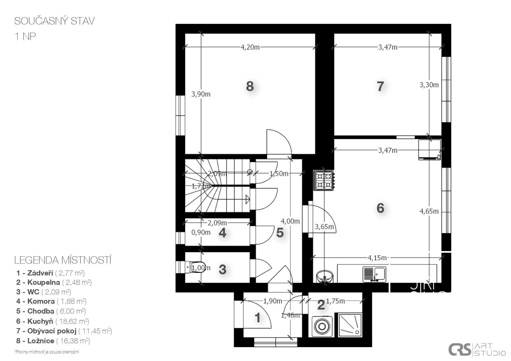
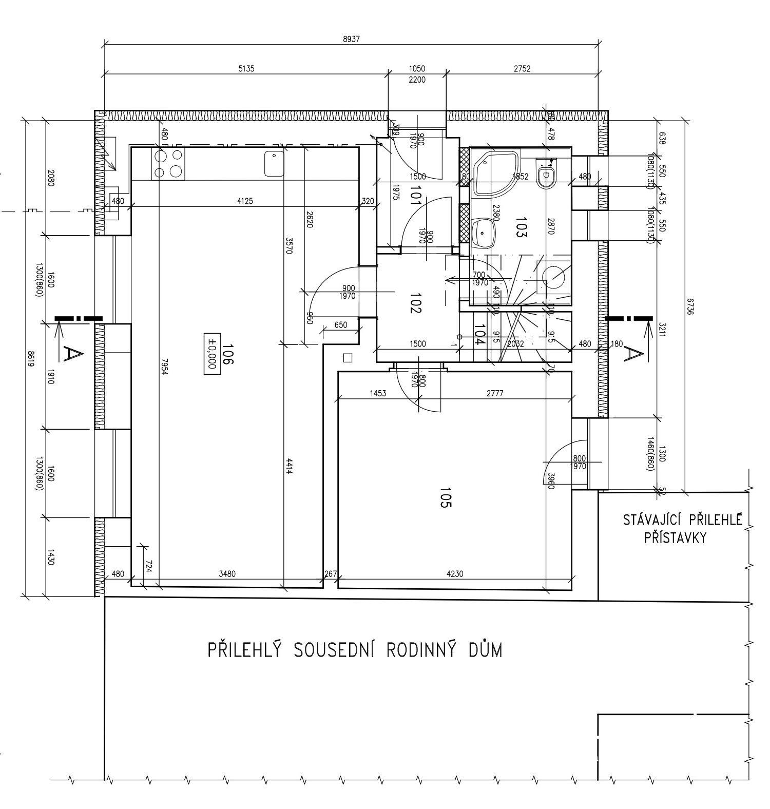
Rodinný dům má 2 nadzemní podlaží. Aktuálně je v 1. NP byt s dispozicí 2+1 s koupelnou a wc. V 2.NP je možné vybudovat podkrovní vestavbu, přičemž půda je vysoká a umožňuje bezproblémovou plnohodnotnou vestavbu dalších tří pokojů a wc, bez nutnosti zvyšovat střechu.
Dům je starší v původním stavu, ale velmi dobře udržovaný. V domě je možné bydlet i když je velký předpoklad pro jeho rekonstrukci nebo modernizaci a rozšíření na současné půdě. Také existuje varianta dům strhnout a na jeho místě postavit dům nový. Záleží na vaší preferenci.
Dům je připojen na elektřinu, vodu a kanalizaci. Na pozemku je studna s užitkovou vodou. Plynovod vede v ulici a je možné se k němu připojit.
Nákup domu je možní financovat hypotéčním úvěrem.
- Poloha objektu:rohový
- Druh objektu:cihlová
- Stav objektu:před rekonstrukcí
- Počet podlaží v objektu:2
- Typ domu:patrový
- Zastavěná plocha:169 m2
- Užitná plocha:62 m2
- Plocha parcely:333 m2
- Plocha zahrady:333 m2
- Plocha sklepu:10 m2
- Umístění objektu:klidná část obce
- Doprava:silnice; MHD; autobus
- Voda:Vodovod
- Odpad:Kanalizace
- Energetická náročnost budovy:G - Mimořádně nehospodárná
- Energetický ukazatel
podle vyhlášky:č. 264/2020 Sb. - Plocha zahrady:333 m2
- Předzahrádka:333 m2
- Sklep:10 m2
