Investujte do svého budoucího domova nebo rozšiřte své portfolio nemovitostí s tímto prostorným bytem 3+1 o rozloze 72 m2, který se nachází v 8. patře cihlového domu s výtahem.
Tento byt nabízí skvělou příležitost pro rodiny i investory, kteří hledají nemovitost s potenciálem. Byt je v původním stavu, což znamená, že máte možnost přizpůsobit si interiér podle svých představ a potřeb.
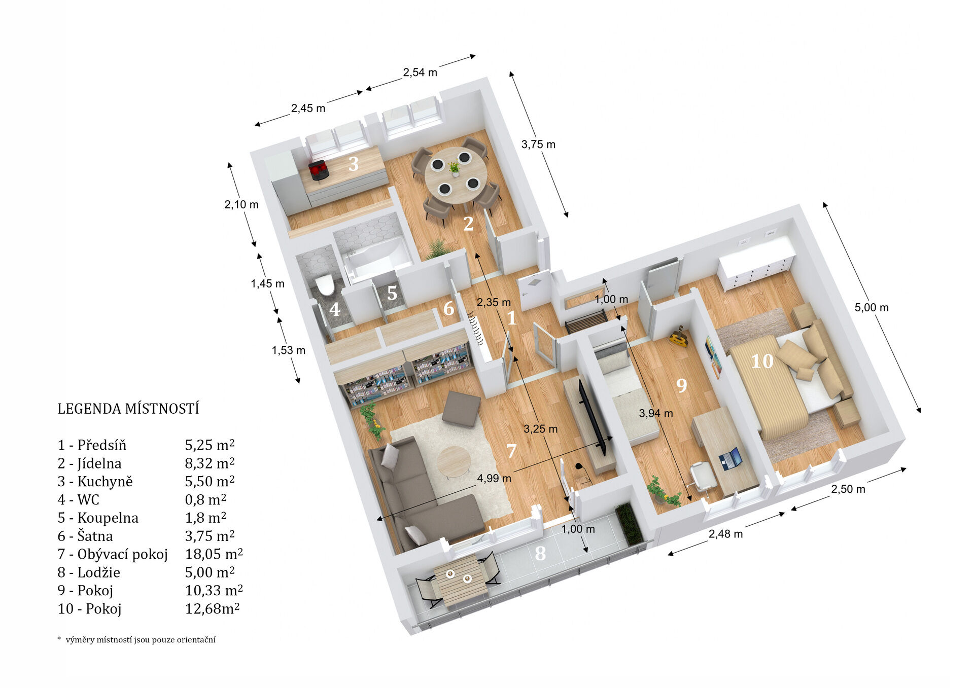
Dispozice bytu je velmi praktická, s neprůchozími pokoji, které zajišťují soukromí a pohodlí pro všechny členy domácnosti. Vstup na balkon, který se nachází v obývacím pokoji, nabízí místo pro relaxaci a vychutnání si čerstvého vzduchu.
Klidná lokalita Prahy 4 - Záběhlice je ideální pro rodiny, které ocení blízkost přírody a možnost procházek, ale zároveň i dobrou dostupnost do centra města.
V okolí najdete veškerou občanskou vybavenost, včetně obchodů, škol a restaurací, což z této lokality činí atraktivní místo pro život. Nezmeškejte tuto jedinečnou příležitost a přetvořte tento byt na svůj vysněný domov nebo investici, která se vyplatí.
Byt je možné financovat hypotečním úvěrem se kterým vám rádi pomůžeme.
Kontaktujte nás pro více informací a domluvte si prohlídku ještě dnes!
- Dispozice bytu:3+1
- Podlaží v domě:8
- Počet podlaží v domě:8
- Celková podlahová plocha:72 m2
- Druh objektu:cihlová
- Stav objektu:před rekonstrukcí
- Vlastnictví:osobní
- Druh bytu:V nájemním domě (činžovním)
- Umístění objektu:sídliště
- Doprava:vlak; dálnice; silnice; MHD; autobus
- Elektřina:Elektro - 380 V
- Telekomunikace:Internet
- Plyn:Plynovod
- Topení:Ústřední - dálkové
- Odpad:Kanalizace
- Energetická náročnost budovy:E - Nehospodárná
- Energetický ukazatel
podle vyhlášky:č. 148/2007 Sb.
