Exkluzivně vám nabízím k prodeji byt ve vlastnictví s dispozicí 2+kk s balónem a sklepem na adrese Tmaň č.p. 178, nedaleko Králova Dvora.
Chcete bydlet v prostorném bytě v klidné lokalitě, s dobrou dostupností do Prahy, Králova Dvora, Berouna nebo Plzně? Nebo chcete investovat do bytu vhodného pro dlouhodobý pronájem? Máme pro vás jedinečnou nabídku!
O nemovitosti:
•Adresa: Tmaň č.p. 178
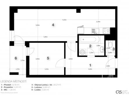
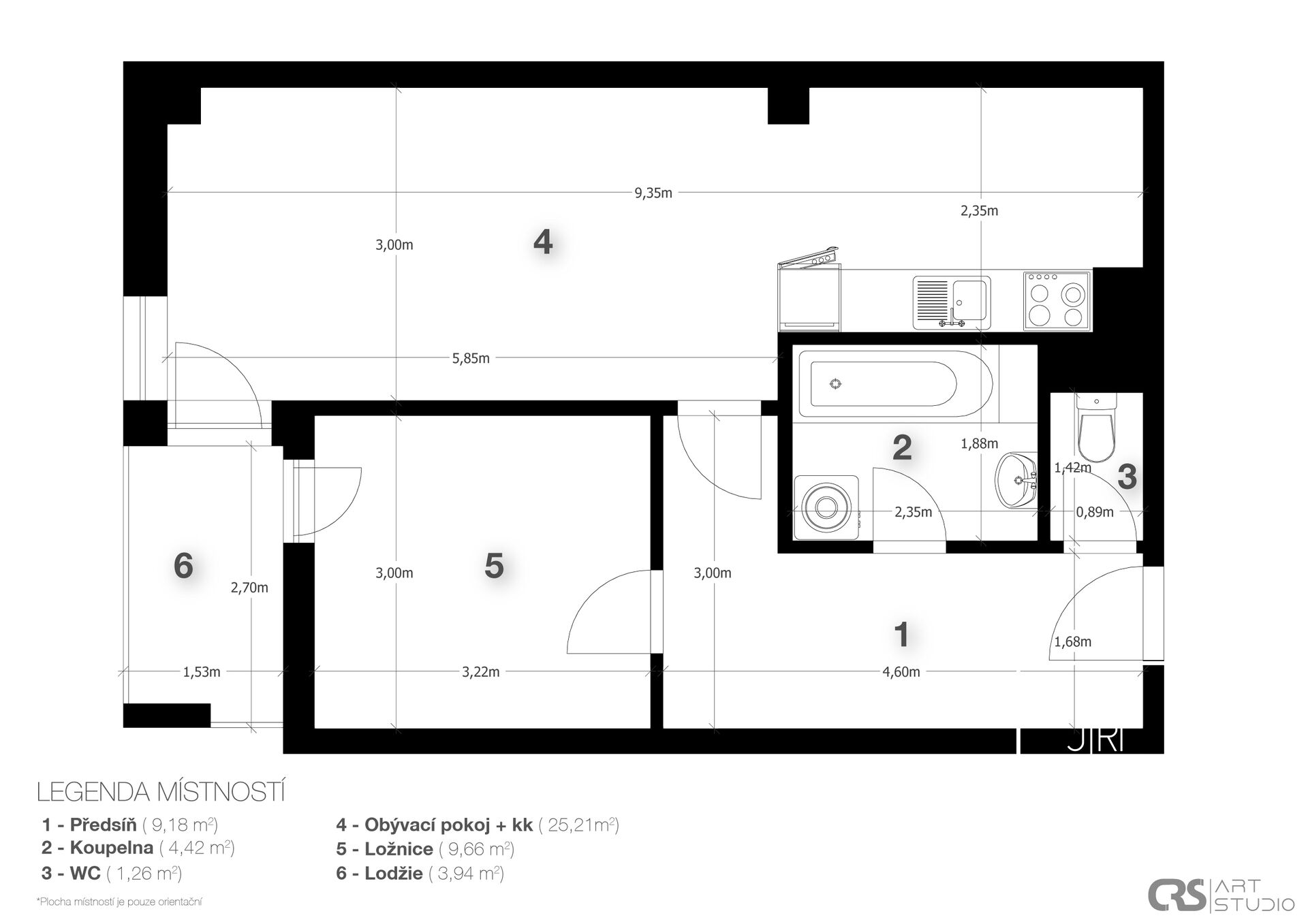
•Dispozice: 2+kk
•Rozloha: 50 m² + balkón 5 m² + sklep 1 m²
•Umístění: 4. patro (5. nadzemní podlaží) v revitalizovaném bytovém domě s výtahem
•Vlastnictví: Osobní (možnost financování hypotéčním úvěrem)
•Parkování: v okolí domu je mnoho volných parkovacích míst
•Sklep: 1 m² úložného prostoru suterénu domu
Přednosti bytu:
•Prostorný obývací pokoj s kuchyňským koutem: Ideální pro rodinná setkání a pohodlný život
•Samostatná ložnice: Zajišťují soukromí a klid
•Sklep: jako úložný prostor
•Parkování: máte jistotu, že vždy zaparkujete.
•V bytě jsou vyšší stropy a byt tak působí velmi vzdušně.
Investiční příležitost:
•Vhodné pro vlastní bydlení i jako investice.
•Atraktivní nájmy: Potenciál pro stabilní a zajímavý příjem z pronájmu
Financování:
•Byt je v osobním vlastnictví: Nákup lze financovat hypotečním úvěrem
Neváhejte a domluvte si prohlídku ještě dnes!
Kontaktujte nás pro více informací a přijďte se přesvědčit, že tento byt je tím pravým místem pro váš nový domov nebo investici. Vaše vysněné bydlení čeká právě na vás!
- Dispozice bytu:2+kk
- Podlaží v domě:5
- Počet podlaží v domě:5
- Celková podlahová plocha:55 m2
- Druh objektu:panelová
- Stav objektu:dobrý
- Vlastnictví:osobní
- Druh bytu:V panelovém domě
- Balkón:5 m2
- Sklep:1 m2
- Umístění objektu:klidná část obce
- Doprava:dálnice; silnice; MHD; autobus
- Voda:Rozvod studené a teplé vody
- Topení:Ústřední - dálkové
- Odpad:Kanalizace
- Energetická náročnost budovy:D - Méně úsporná
- Ukazatel energetické náročnosti budovy:83 kWh/m²
- Energetický ukazatel
podle vyhlášky:č. 78/2013 Sb. - Energetický průkaz:stáhnout
- Plocha balkónu:5 m2
